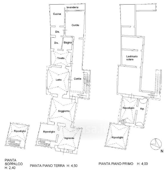
Casa indipendente in vendita Via Moline 82, Novoli
Salva
Casa.it
1/21
  • Street View
  • Map