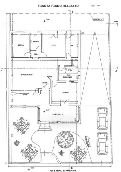
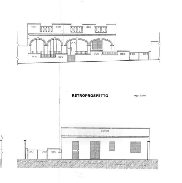
Casa indipendente in vendita Via V. Veneto 5, Salve
Salva
Casa.it
1/26
  • Street View
  • Map