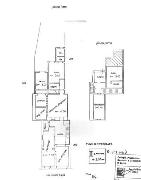
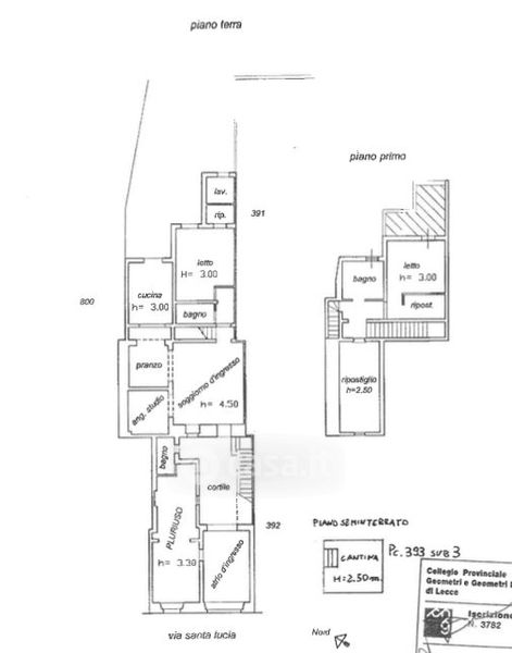
Casa indipendente in vendita Via Santa Lucia 23, Surano
Salva
Casa.it
1/49
  • Street View
  • Map