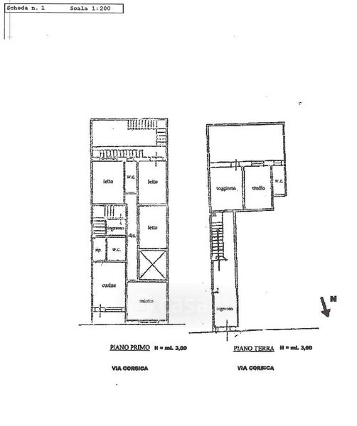
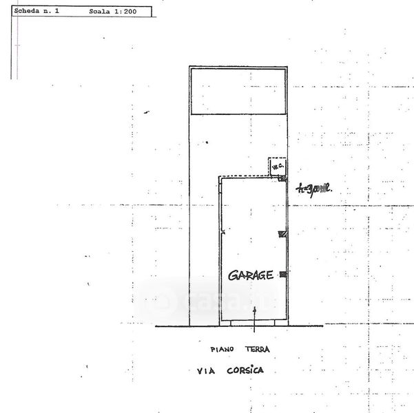
Casa indipendente in vendita Via Corsica 54, Taviano
Salva
Casa.it
1/22
  • Street View
  • Map