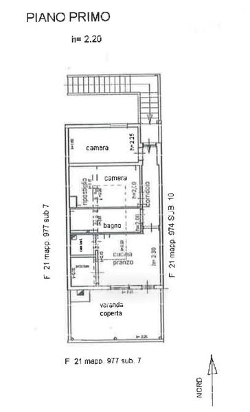
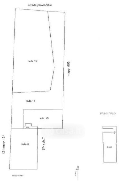
Casa indipendente in vendita Località sa spregargia 10, Muravera
Salva
Casa.it
1/37
  • Street View
  • Map