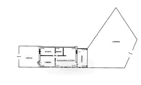
Casa indipendente in vendita Via Italia , Sant'Anna Arresi
Salva
Casa.it
1/23
  • Street View
  • Map