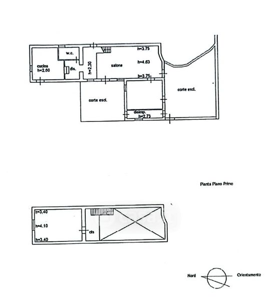
Casa indipendente in vendita Via Jacopo da Lentini 18, Palermo
Salva
Casa.it
1/28
  • Street View
  • Map