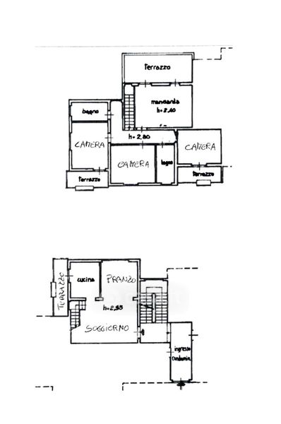
Casa indipendente in vendita Via di Belforte , Bagno a Ripoli
Salva
Casa.it
1/65
  • Street View
  • Map