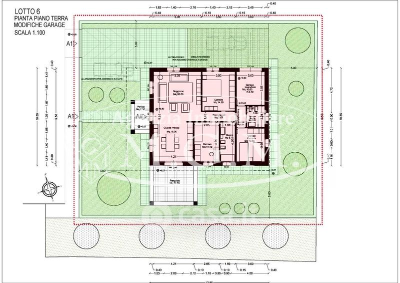
Casa indipendente in vendita Via del Battaglione 56012, Calcinaia
Salva
Casa.it
1/14
  • Street View
  • Map