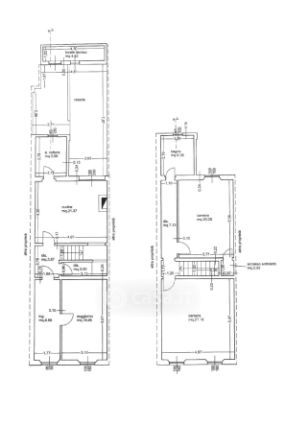
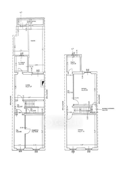
Casa indipendente in vendita Piazza L. Ballerini , Campi Bisenzio
Salva
Casa.it
1/32
  • Street View
  • Map