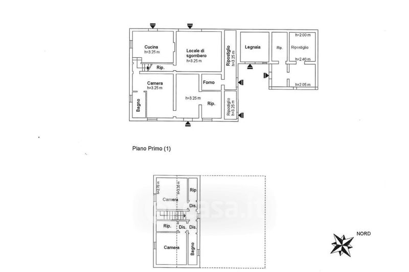
Casa indipendente in vendita Via XXV Aprile 43, Cetona
Salva
Casa.it
1/45
  • Street View
  • Map