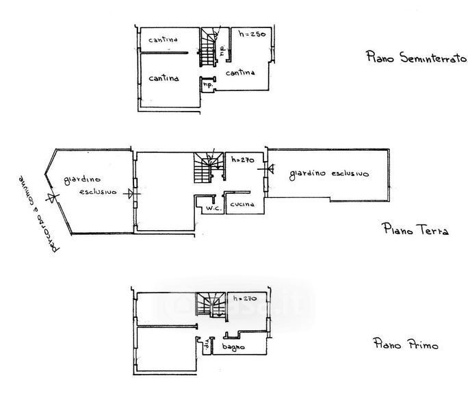
Casa indipendente in vendita Via del Mugnoncello , Fiesole
Salva
Casa.it
1/54
  • Street View
  • Map