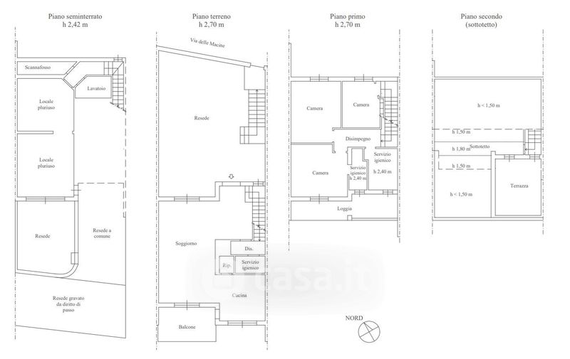
Casa indipendente in vendita Via delle Macine 47, Lastra a Signa
Salva
Casa.it
1/23
  • Street View
  • Map