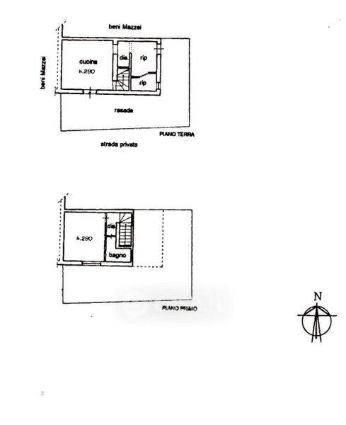
Casa indipendente in vendita Via del Tiro a Segno , Lucca
Salva
Casa.it
1/6
  • Street View
  • Map