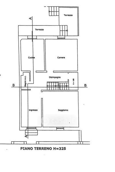
Casa indipendente in vendita Via Cosimo Dè Medici , Poggio a Caiano
Salva
Casa.it
1/42
  • Street View
  • Map