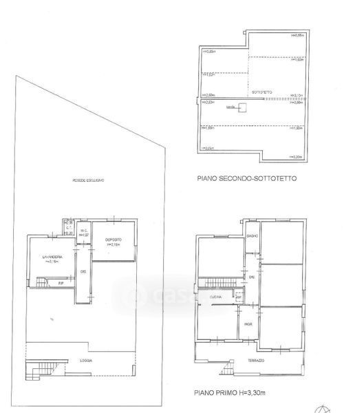
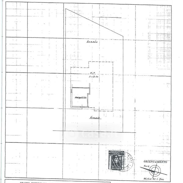
Casa indipendente in vendita Via Poggio a Isola 5, San Miniato
Salva
Casa.it
1/36
  • Street View
  • Map