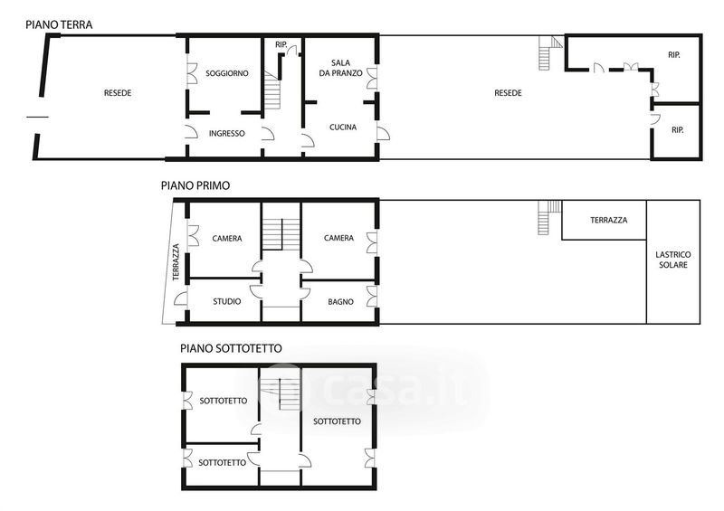
Casa indipendente in vendita Via Giuseppe Garibaldi , Sesto Fiorentino
Salva
Casa.it
1/40
  • Street View
  • Map