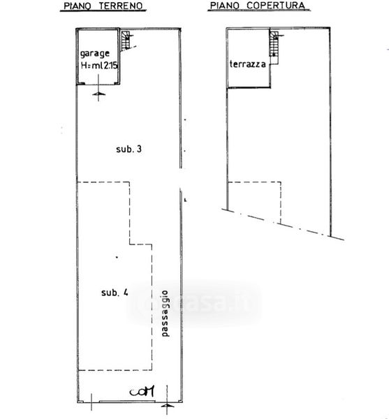
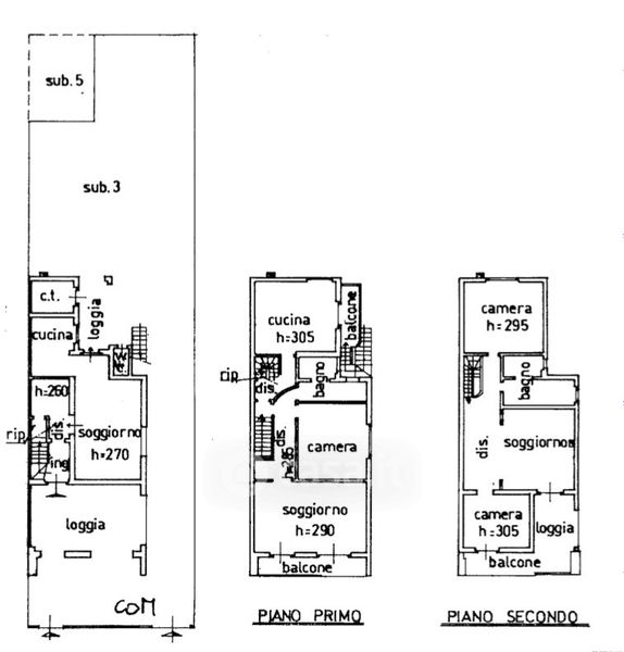
Casa indipendente in vendita Via Vittorio Alfieri , Sesto Fiorentino
Salva
Casa.it
1/58
  • Street View
  • Map