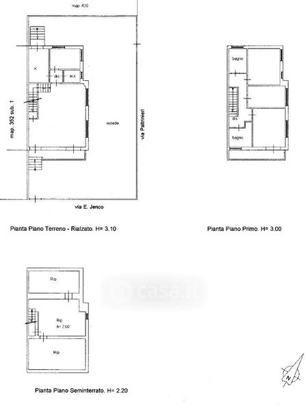
Casa indipendente in vendita Via Elpidio Jenco 19, Viareggio
Salva
Casa.it
1/36
  • Street View
  • Map