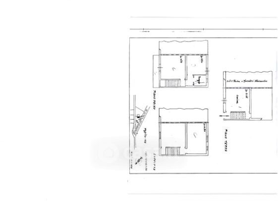
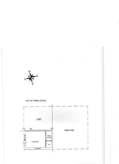
Casa indipendente in vendita Via delle Fontanelle 2, Marsciano
Salva
Casa.it
1/26
  • Street View
  • Map