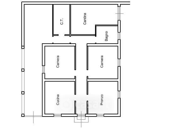
Casa indipendente in vendita Via Ortana Vecchia , Narni
Salva
Casa.it
1/30
  • Street View
  • Map