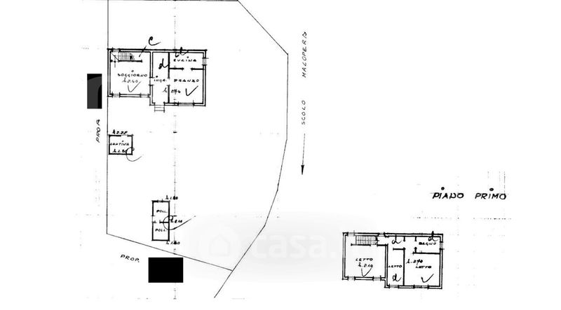
Casa indipendente in vendita Via Rosinella 1635, Badia Polesine
Salva
Casa.it
1/16
  • Street View
  • Map