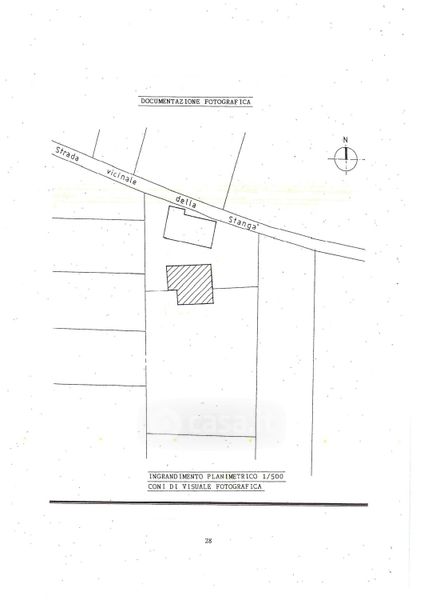
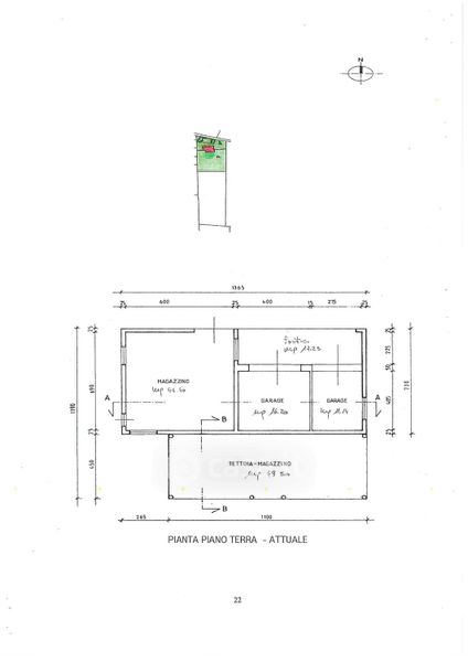
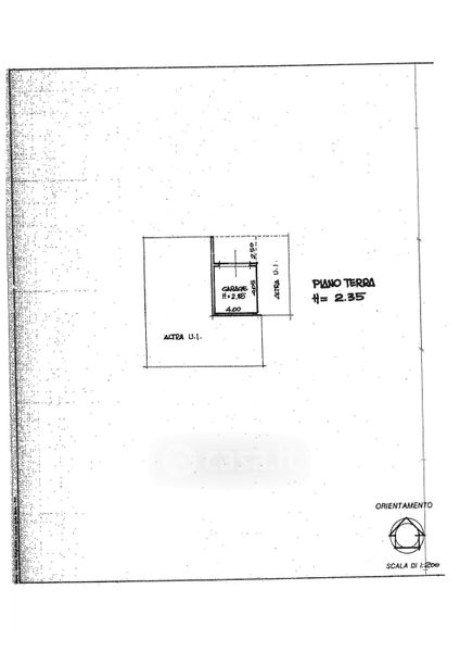
Casa indipendente in vendita Via Cantarana , Colceresa
Salva
Casa.it
1/64
  • Street View
  • Map