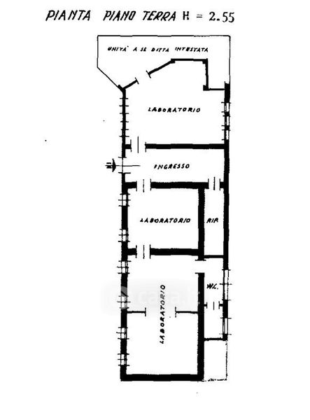
Casa indipendente in vendita Via Vallegia 4, Galzignano Terme
Salva
Casa.it
1/27
  • Street View
  • Map