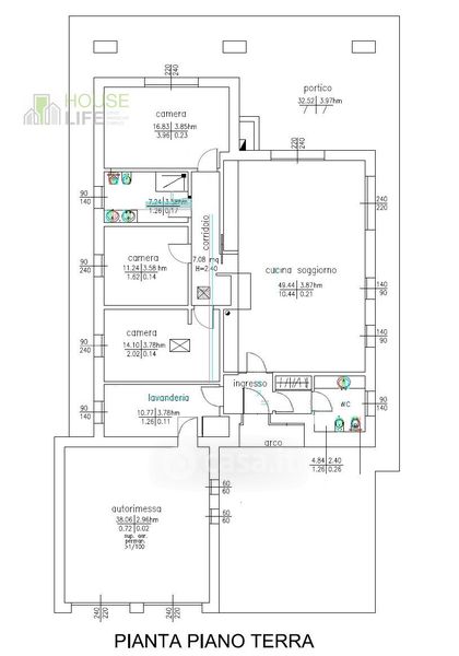
Casa indipendente in vendita Via M. Cimone , Malo
Salva
Casa.it
1/15
  • Street View
  • Map