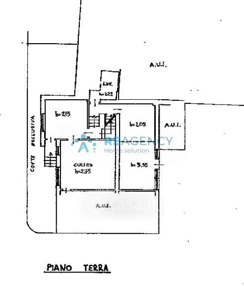
Casa indipendente in vendita Via Lanificio Rossi 8, Torrebelvicino
Salva
Casa.it
1/36
  • Street View
  • Map