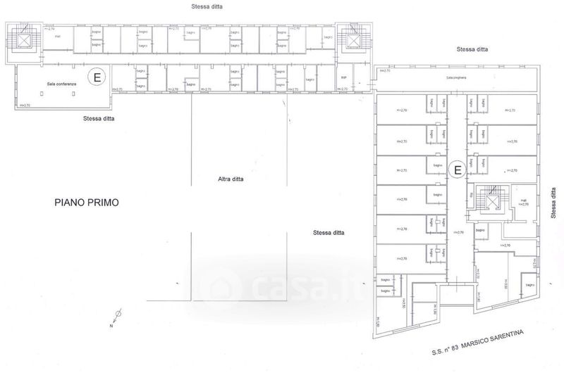
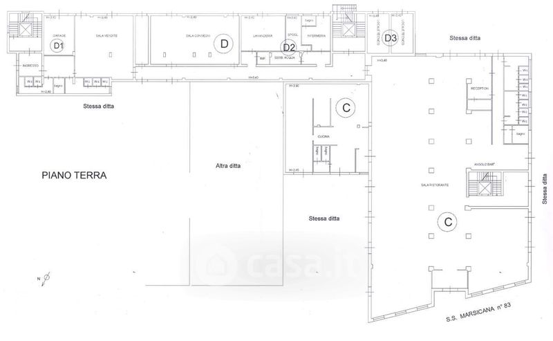
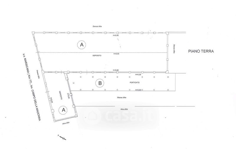
Edificio in vendita SS83 , Alfedena
Salva
Casa.it
1/46
  • Street View
  • Map