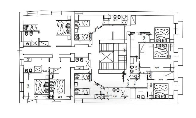
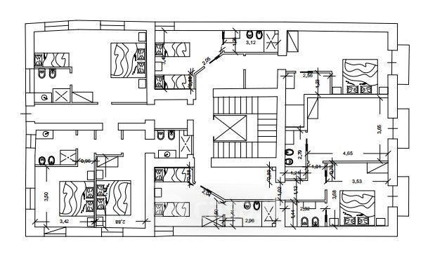
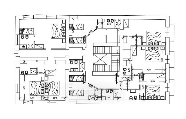
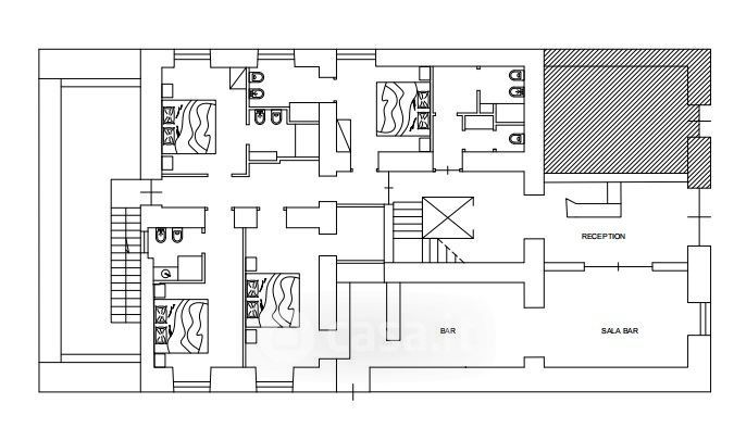
Edificio in affitto Piazza Giuseppe Garibaldi , Napoli
Salva
Casa.it
1/8
  • Street View
  • Map