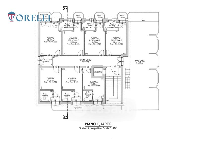
Edificio in vendita Via Publio Cornelio Tacito 10, Bellaria-Igea Marina
Salva
Casa.it
1/34
  • Street View
  • Map