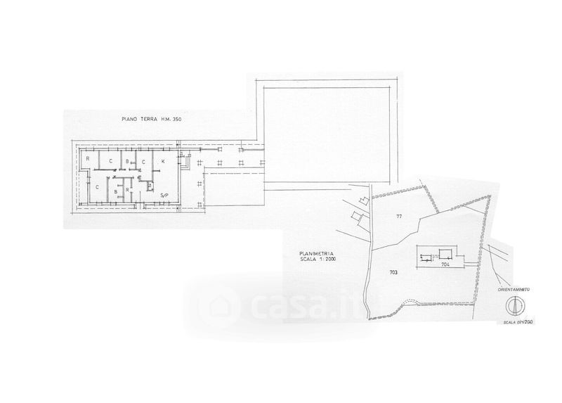
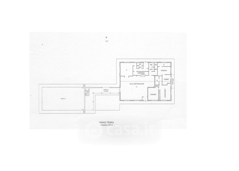
Edificio in vendita Via G. Bettini , Monte San Pietro
Salva
Casa.it
1/75
  • Street View
  • Map