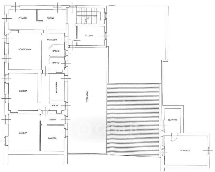
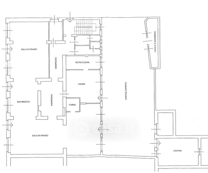
Edificio in vendita Via Dante Alighieri 2 -22, Gradisca d'Isonzo
Salva
Casa.it
1/6
  • Street View
  • Map