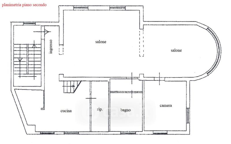
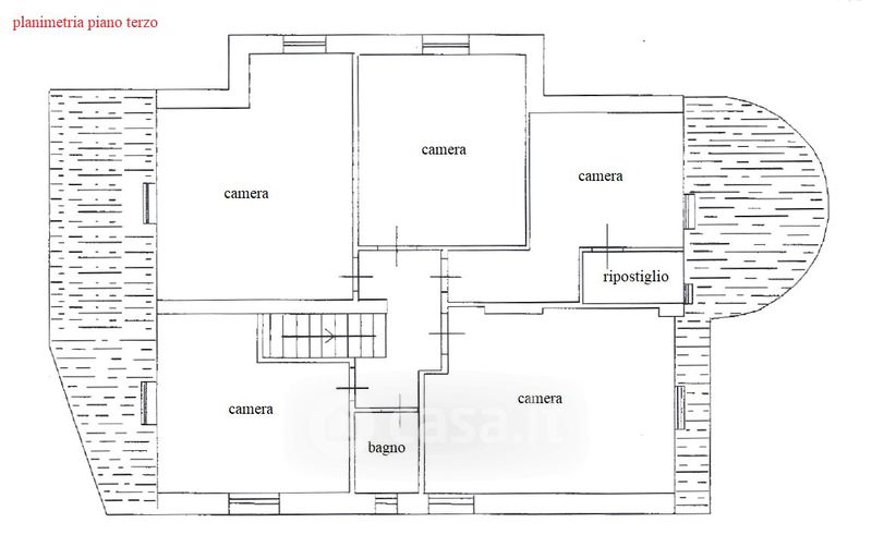
Edificio in vendita Via Pietro Mascagni 45, Frosinone
Salva
Casa.it
1/45
  • Street View
  • Map