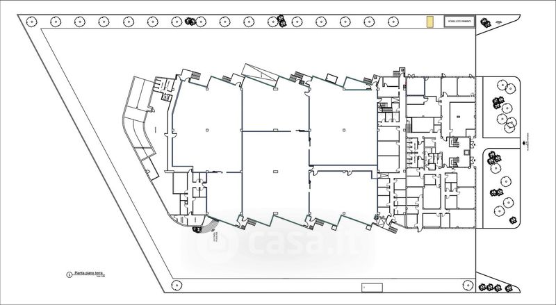
Edificio in vendita Via Sambuca Pistoiese 62, Roma
Salva
Casa.it
1/15
  • Street View
  • Map