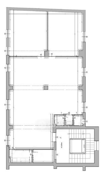
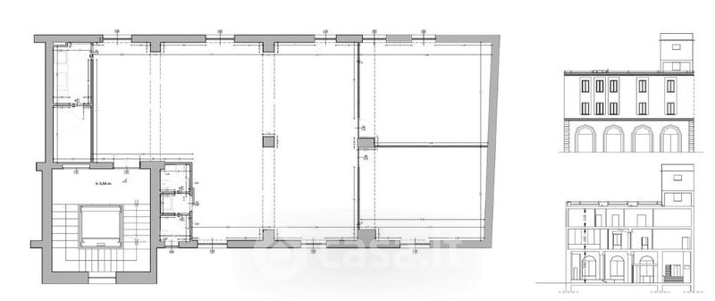
Edificio in affitto Via Giovanni da Castel Bolognese , Roma
Salva
Casa.it
1/23
  • Street View
  • Map