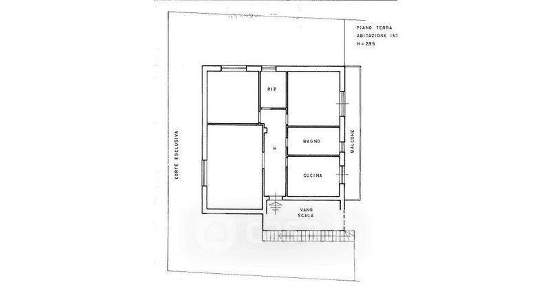
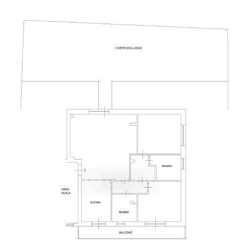
Edificio in vendita Via Gattinara , Roma
Salva
Casa.it
1/37
  • Street View
  • Map