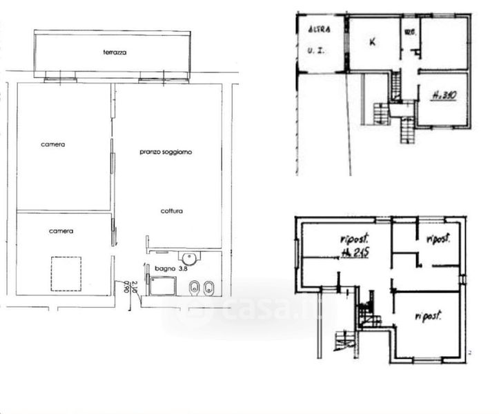
Edificio in vendita Via Sacchelle , Borgo San Giovanni
Salva
Casa.it
1/17
  • Street View
  • Map