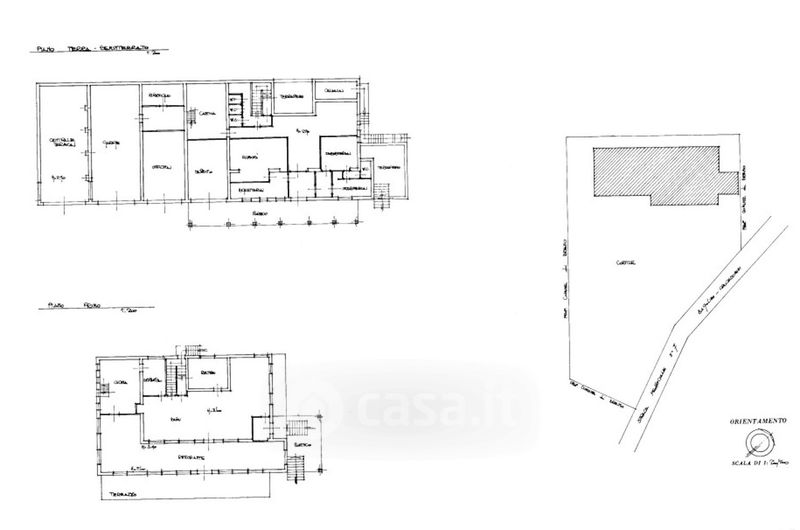
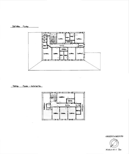
Edificio in vendita SP669 307, Breno
Salva
Casa.it
1/36
  • Street View
  • Map