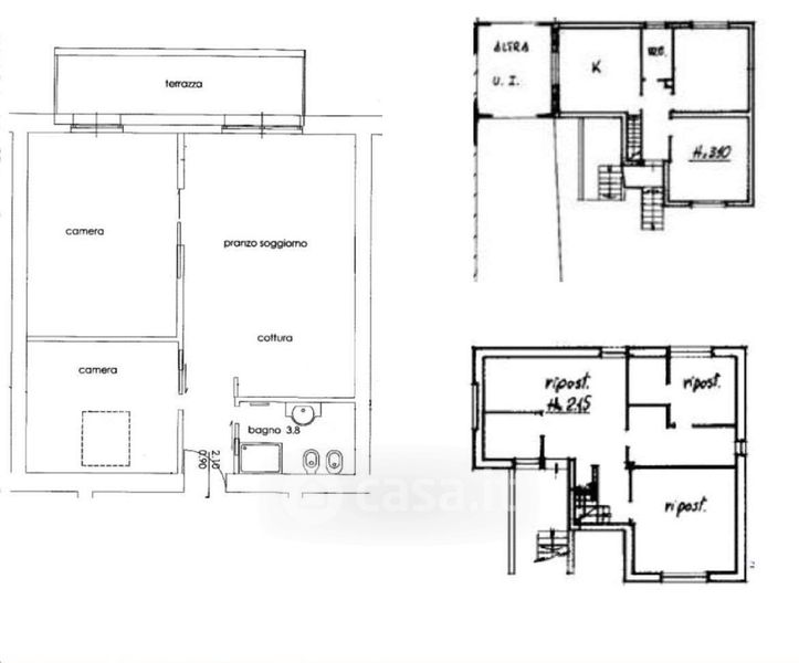
Edificio in vendita Via Carmagnola 12, Chiari
Salva
Casa.it
1/17
  • Street View
  • Map