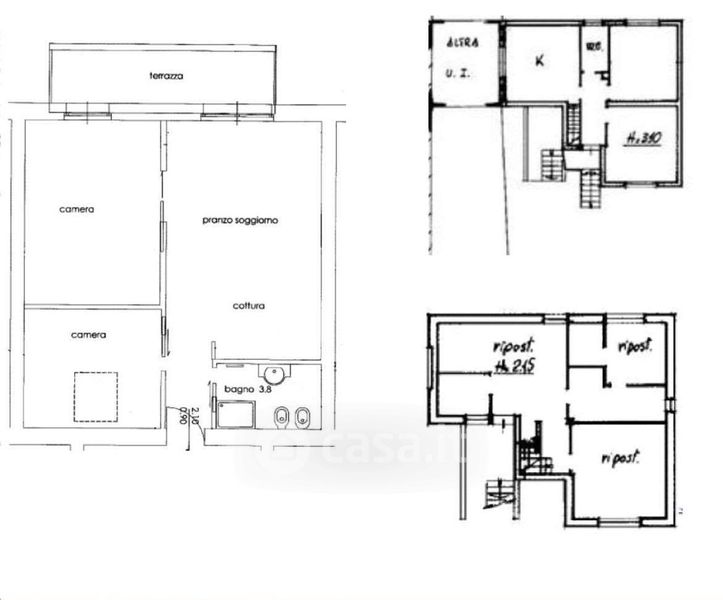
Edificio in vendita Via Giuseppe Mazzini 110, Darfo Boario Terme
Salva
Casa.it
1/17
  • Street View
  • Map