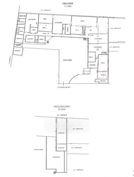
Edificio in vendita Via Nazionale dei Giovi 151, Lentate sul Seveso
Salva
Casa.it
1/16
  • Street View
  • Map