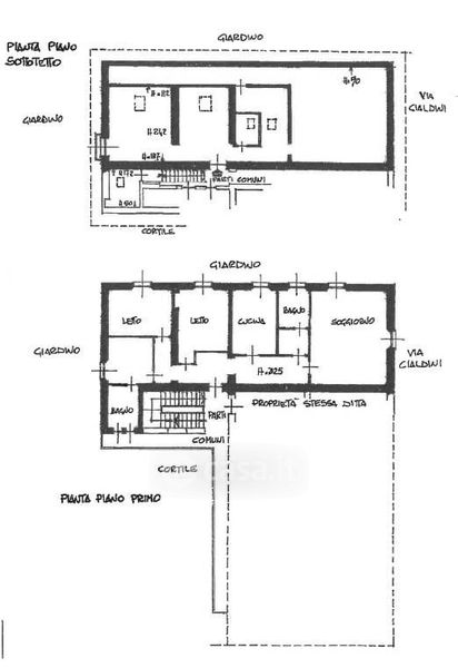
Edificio in vendita Via Enrico Cialdini 89, Milano
Salva
Casa.it
1/43
  • Street View
  • Map