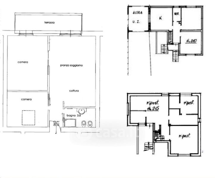
Edificio in vendita Via Cesare Battisti 7, Pontoglio
Salva
Casa.it
1/17
  • Street View
  • Map