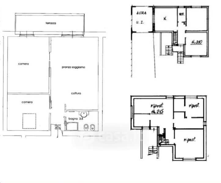
Edificio in vendita Via Calisto Sguazzi 11, Robecco d'Oglio
Salva
Casa.it
1/13
  • Street View
  • Map