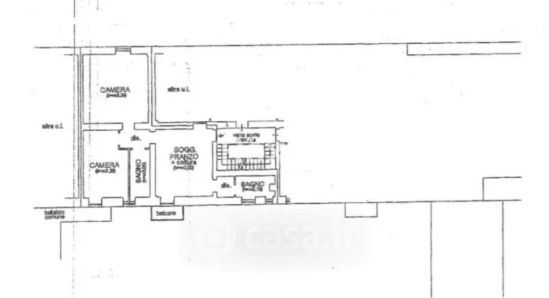
Edificio in vendita Via Giuseppe Mazzini 3, Senago
Salva
Casa.it
1/34
  • Street View
  • Map