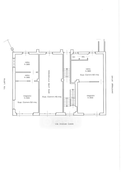
Edificio in vendita Via Andrea Costa 36, Collegno
Salva
Casa.it
1/16
  • Street View
  • Map