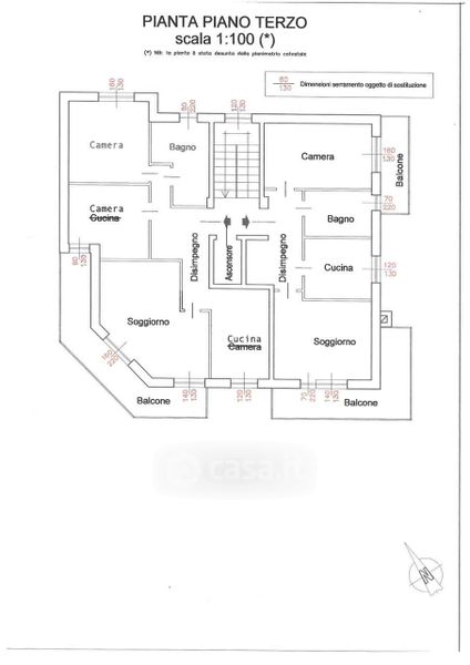
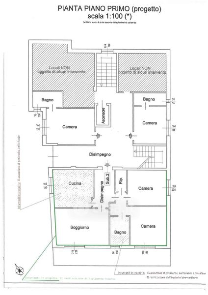
Edificio in vendita Viale IV Novembre 111, Saint-Vincent
Salva
Casa.it
1/17
  • Street View
  • Map