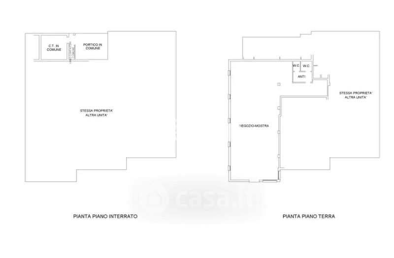
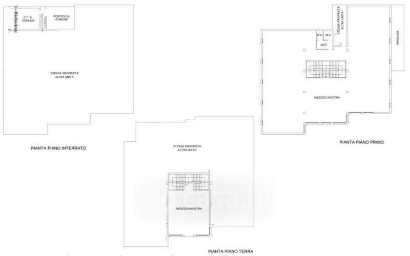
Edificio in vendita Via Domenico Turazza 47, Padova
Salva
Casa.it
1/49
  • Street View
  • Map