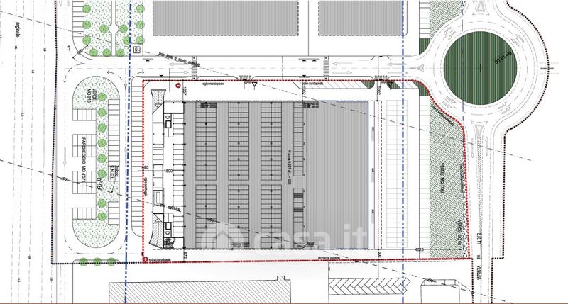
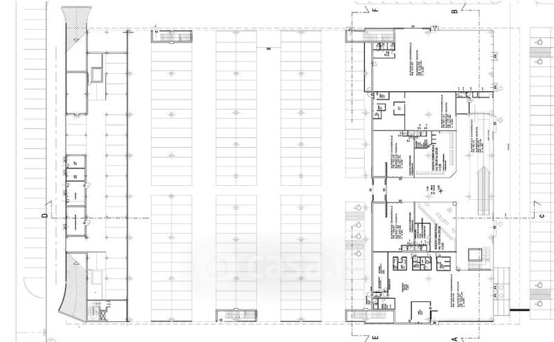
Edificio in vendita Via Udine , Vigonza
Salva
Casa.it
1/14
  • Street View
  • Map