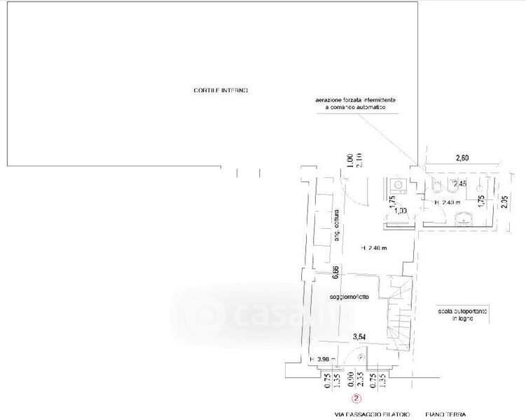
Loft in vendita Passaggio Del Filatoio 10, Bergamo
Salva
Casa.it
1/10
  • Street View
  • Map