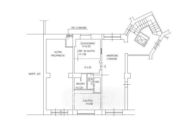
Loft in vendita Via Guido Cavalcanti 2, Milano
Salva
Casa.it
1/13
  • Street View
  • Map